Lux Studio London
SUMMARY
Production Studio with In-House LED Walls, Crew + Equipment
This 5000 SQFT hybrid production studio in East London is more than just a shoot space — it’s a complete, cost-effective production base, offering studio, crew, equipment + LED wall workflows under one roof at a single rate.
Designed for photography, film, commercials, branded content + small-scale virtual production, the studio combines practical shoot spaces with calm client areas and an experienced in-house team built over 25+ years of real-world production.
Key Features at a Glance
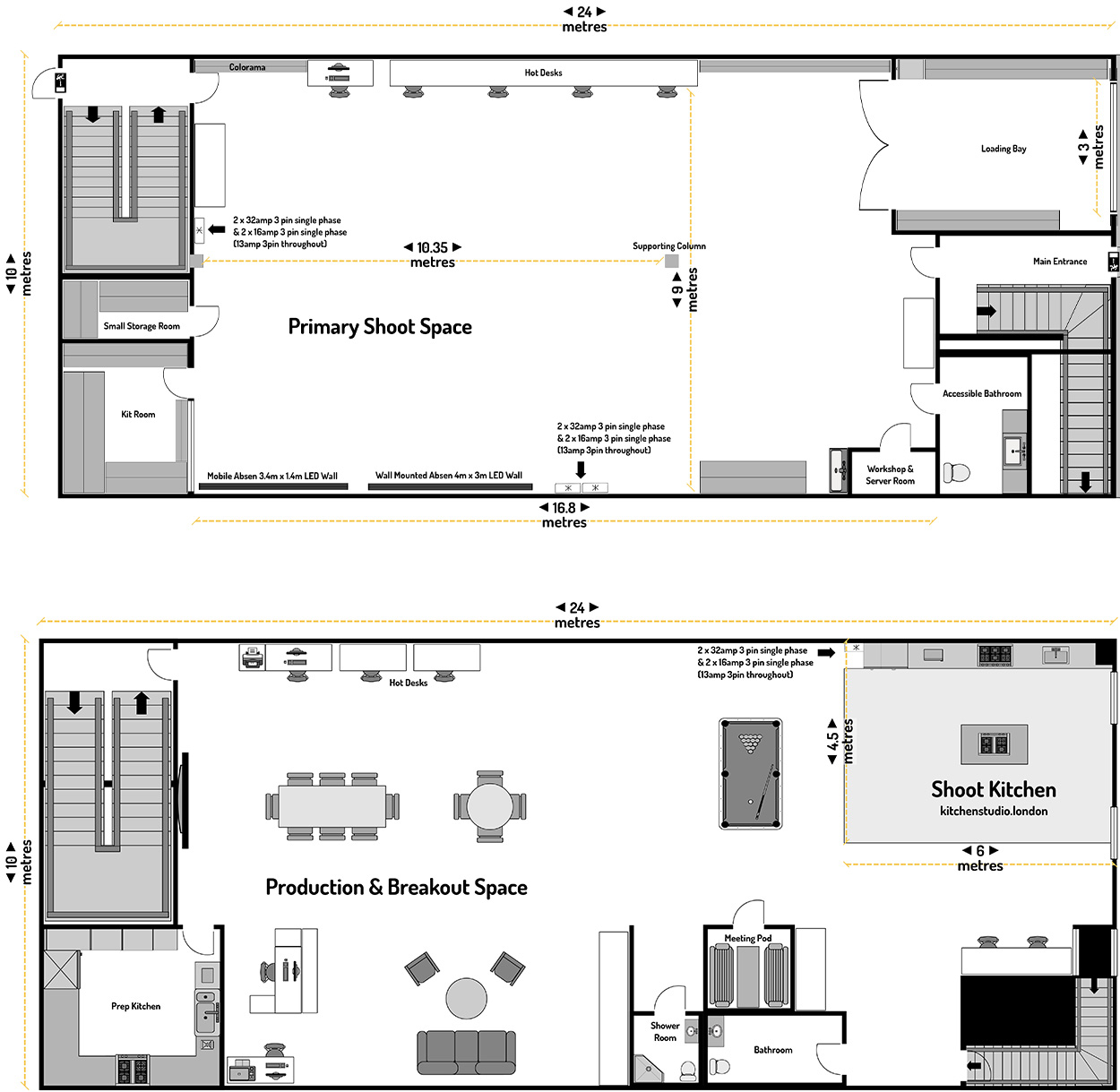
- 5000 SQFT studio over two floors
- Ground-floor shoot space with 4m ceilings
- Loading bay + free parking
- Two in-house LED walls with Genlock + Novastar
- Cost-effective small-scale virtual production
- Dedicated client + production areas
- Full in-house crew, kit + workflows
- Optional shoot kitchen on-site
Studio Overview
5000 SQFT studio split across two full floors — a true hybrid shoot + production environment
Ground Floor
- 2500 SQFT primary shoot space
- 4m high ceilings
- Loading bay access
- Free on-site parking
- Two in-house LED walls for small-scale VP
- Ideal for photography, film, commercials, tabletop + branded content
First Floor
- 2500 SQFT dedicated client + production area
- Calm breakout environment for agency-attended shoots
- Fully equipped prep kitchen + shoot kitchen
- Dedicated meeting room + hot desks
- Lounge + dining area
- Toilets + shower facilities
- Live camera feed on large QLED display
This separation allows teams to shoot downstairs while clients + production collaborate upstairs, making the space ideal for full-day or multi-day bookings
LED Wall Setup (In-House)
The studio offers two in-house LED wall setups, designed for product, tabletop, portrait + model-based shoots, as well as cost-effective virtual production plate shoots
Wall-Mounted LED Wall
- 3.66m × 2.4m (flush to floor)
- 2.54mm pixel pitch
- 1000 nits peak brightness
- 3840Hz refresh
- Novastar processing
- Genlock / Tri-Sync / Black Burst
- Best suited to model-based or full-body shoots
Mobile Fine-Pitch LED Wall
- 3.46m × 1.44m
- 1.8mm pixel pitch
- 800 nits peak brightness
- 1920Hz refresh
- Novastar processing + Genlock
- Ideal for product + tabletop shoots
- Can also be used as a lighting totem alongside the larger wall
LED Wall Workflow
The in-house setup includes LED panels, processing, genlock + playback support only, making it a straightforward + affordable VP option
Unreal Engine, camera tracking + render systems are not included as standard but can be arranged or supplied by the client
This makes the studio a rare, highly cost-effective VP option at this scale + price point
The Team
An experienced multi-disciplined in-house crew with over 25 years of experience, all of whom have worked together full-time for more than a decade
Roles available include:
- Director of Photography
- Camera Operator / 1st AC
- DIT + Video Assist
- Gaffer / Key Grip
- Motion Control Operator
- Production Assistants + Runners
Thanks to the team’s versatility, multiple roles can often be covered by fewer crew members, allowing high-end results with leaner, more efficient production setups
In-House Equipment
A comprehensive in-house kit covering stills, motion, tabletop + virtual production, including:
- 6K + 4K cine cameras (RED, Sony, Canon)
- Large-format technical cameras
- PL cine lenses + tilt-shift lenses
- Motion control (pan, tilt, sliders, turntables)
- Arri continuous lighting
- Broncolor + Elinchrom flash systems
- Full grip, modifiers, playback + monitoring
- Sound, power distribution + studio infrastructure
Everything is designed to support high-end tabletop, product, beauty + cinematic shoots without relying on external rentals
Dedicated Shoot Kitchen
An ultra-modern, fully bespoke shoot kitchen located on-site + available for hire
- Contemporary, flexible design
- Ideal for food, drink + lifestyle shoots
- Fully functional + production-ready
- Can be booked alongside studio hire
Packages + Flexibility
Clients can scale support from dry studio hire through to fully managed productions, including:
- Studio-only hire
- Studio + LED wall
- Studio + kit + crew
- Studio + kit + crew + LED wall
All standard packages are based on a 10-hour shoot day, with optional exclusive use of upstairs client areas
Location + Access
- Located in Canning Town, East London (E16)
- Outside the Congestion Charge Zone
- Immediate access from the A13
- Free on-site + nearby parking
- 10 min walk from Custom House (Elizabeth Line)
- Close to Jubilee Line, DLR, Stratford + City Airport
This 5000 SQFT hybrid production studio in East London is more than just a shoot space — it’s a complete, cost-effective production base, offering studio, crew, equipment + LED wall workflows under one roof at a single rate.
Designed for photography, film, commercials, branded content + small-scale virtual production, the studio combines practical shoot spaces with calm client areas and an experienced in-house team built over 25+ years of real-world production.
Key Features at a Glance
- 5000 SQFT studio over two floors
- Ground-floor shoot space with 4m ceilings
- Loading bay + free parking
- Two in-house LED walls with Genlock + Novastar
- Cost-effective small-scale virtual production
- Dedicated client + production areas
- Full in-house crew, kit + workflows
- Optional shoot kitchen on-site
Studio Overview
5000 SQFT studio split across two full floors — a true hybrid shoot + production environment
Ground Floor
- 2500 SQFT primary shoot space
- 4m high ceilings
- Loading bay access
- Free on-site parking
- Two in-house LED walls for small-scale VP
- Ideal for photography, film, commercials, tabletop + branded content
First Floor
- 2500 SQFT dedicated client + production area
- Calm breakout environment for agency-attended shoots
- Fully equipped prep kitchen + shoot kitchen
- Dedicated meeting room + hot desks
- Lounge + dining area
- Toilets + shower facilities
- Live camera feed on large QLED display
This separation allows teams to shoot downstairs while clients + production collaborate upstairs, making the space ideal for full-day or multi-day bookings
LED Wall Setup (In-House)
The studio offers two in-house LED wall setups, designed for product, tabletop, portrait + model-based shoots, as well as cost-effective virtual production plate shoots
Wall-Mounted LED Wall
- 3.66m × 2.4m (flush to floor)
- 2.54mm pixel pitch
- 1000 nits peak brightness
- 3840Hz refresh
- Novastar processing
- Genlock / Tri-Sync / Black Burst
- Best suited to model-based or full-body shoots
Mobile Fine-Pitch LED Wall
- 3.46m × 1.44m
- 1.8mm pixel pitch
- 800 nits peak brightness
- 1920Hz refresh
- Novastar processing + Genlock
- Ideal for product + tabletop shoots
- Can also be used as a lighting totem alongside the larger wall
LED Wall Workflow
The in-house setup includes LED panels, processing, genlock + playback support only, making it a straightforward + affordable VP option
Unreal Engine, camera tracking + render systems are not included as standard but can be arranged or supplied by the client
This makes the studio a rare, highly cost-effective VP option at this scale + price point
The Team
An experienced multi-disciplined in-house crew with over 25 years of experience, all of whom have worked together full-time for more than a decade
Roles available include:
- Director of Photography
- Camera Operator / 1st AC
- DIT + Video Assist
- Gaffer / Key Grip
- Motion Control Operator
- Production Assistants + Runners
Thanks to the team’s versatility, multiple roles can often be covered by fewer crew members, allowing high-end results with leaner, more efficient production setups
In-House Equipment
A comprehensive in-house kit covering stills, motion, tabletop + virtual production, including:
- 6K + 4K cine cameras (RED, Sony, Canon)
- Large-format technical cameras
- PL cine lenses + tilt-shift lenses
- Motion control (pan, tilt, sliders, turntables)
- Arri continuous lighting
- Broncolor + Elinchrom flash systems
- Full grip, modifiers, playback + monitoring
- Sound, power distribution + studio infrastructure
Everything is designed to support high-end tabletop, product, beauty + cinematic shoots without relying on external rentals
Dedicated Shoot Kitchen
An ultra-modern, fully bespoke shoot kitchen located on-site + available for hire
- Contemporary, flexible design
- Ideal for food, drink + lifestyle shoots
- Fully functional + production-ready
- Can be booked alongside studio hire
Packages + Flexibility
Clients can scale support from dry studio hire through to fully managed productions, including:
- Studio-only hire
- Studio + LED wall
- Studio + kit + crew
- Studio + kit + crew + LED wall
All standard packages are based on a 10-hour shoot day, with optional exclusive use of upstairs client areas
Location + Access
- Located in Canning Town, East London (E16)
- Outside the Congestion Charge Zone
- Immediate access from the A13
- Free on-site + nearby parking
- 10 min walk from Custom House (Elizabeth Line)
- Close to Jubilee Line, DLR, Stratford + City Airport
Email Lux Studio London
DIMENSIONS
5000 SQFT
RATE GUIDE
£££
SIZE RANGE
4000 — 5000 SQFT
CAPACITY
Up to 40 people
TAGS
SWING BY SOON!
Lee PattisonUnit D Mint Business Park
41 Butchers Road
Canning Town
London
E16 1PW
Email Lux Studio London



